Vesivek höyrynsulku kattokaivon mitoitus- ja asennusohjeet
Vesivek-kattokaivoja käytetään loivien kattojen sadevedenpoistoon sekä PVC- ja SBS-pinnoitettujen parvekkeiden parvekekaivona. Orimattilan tuotekehityksessä on hiottu kattokaivoihin teknisiä yksityiskohtia, jotka tekevät niistä markkinoiden laadukkaimman ratkaisun.
Vesivek höyrynsulku kattokaivon tekniset tiedot
- Kaivon laipat on primeroitu, laippaa kiertävät läpiurat varmistavat lujan ja varman kiinnittymisen vesieristeisiin (kermeihin).
- Älykkäästi suunniteltu sihti lukittuu varmasti paikalleen ja voidaan irrottaa ilman työkaluja.
- Pystysihdissä on kiinnikkeet sulanapitokaapelin asennusta varten.
- Poistoputki ja tiivistysrengas: Haponkestävä teräs AISI 316 / EN 1.4404.
- Vedeneristyskalvojen laipat: Ruostumaton teräs AISI 304 / 1.4301 / 1.4072B
- SBS vedeneristyskalvot: Katepal K-MS 170/3500 (TL2) kumibitumikermi.
- PVC vedeneristyskalvot: Käytössä useita materiaaleja esim. Fatrafol PVC-P, Protan ja Alkorplan
- Testattu SFS-EN 1253-2 mukaisesti.
Ylempänä Vesivek höyrynsulku kattokaivo EPDM-huulitiivisteellä ja sulanapitokaapelin läpiviennillä. Alla PVC- tai SBS-laipalla, EPDM-huulitiivisteellä ja sulanapitokaapelin läpiviennillä.

Vesivek höyrynsulku kattokaivon mitoitus ja asennus
- Kattokaivot mitoitetaan LVI-suunnitelman mukaisesti. Kaivojen määrä voidaan arvioida myös seuraavasti: Yksi kattokaivo / 200 m2, kun kaivon poistoputken halkaisija on 100 mm tai suurempi.
- Tuote suunnitellaan poistoputken koon sekä laatan paksuuden mukaan.
- Kattokaivo asennetaan jälkikäteen timanttiporattuun asennusreikään tai elementtiin tehtaalla jätettyyn varaukseen.
- Käyttämällä palokatkoa läpivientiholkin ja runko-osan välissä saadaan lämmönnousu estettyä alimmalle kermille.
- Kaivojen asennus ja käyttöönotto on tehtävä voimassa olevien asennusohjeiden ja alan standardien mukaisesti.
- Yhteensopivuus katon vedeneristyskalvoon on varmistettava.
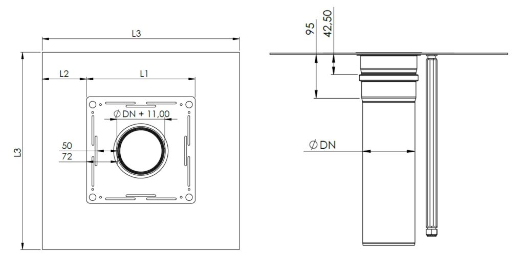
Höyrynsulku kattokaivo HST mitat:

Poistoputken vakiopituudet: 250, 350, 400 ja 500 mm. Muita pituuksia ja putkikokoja saatavilla tilauksesta.

Höyrynsulku kattokaivo PVC- tai SBS-laipalla, mitat:

Poistoputken vakiopituudet: 250, 350, 400,500, 600 ja 800 mm. Muita pituuksia ja putkikokoja saatavilla tilauksesta.

Tiedostopankki
Vesivekin tiedostopankista löydät tuotteiden sertifikaatit, varmennustodistukset, määräykset, tuotetakuut ja huolto-ohjeet helposti samasta paikasta.
Oletko jo lukenut nämä artikkelit?
Vesivekin erikoisosaaminen mahdollisti vaativan parvekevedenpoistoasennuksen Hyvinkäällä
Vesivek toimitti hyvinkääläiseen kerrostaloon parvekevedenpoistojärjestelmän poikkeuksellisesti jälkiasennuksena. Vuonna 2014...
Vesivek turvaa Finlaysonin alueen City View -kattokävelyreitin
Suomen ensimmäinen kattokävely sijoittuu Tampereen Finlaysonin alueen historiallisten rakennusten katoille. Tampereen ikonisia...
Taysin kattoturva ajan tasalle
Julkisissa, isoissa kiinteistöissä kattoturvalle asetetaan erityisen suuret vaatimukset. Tiloissa liikkuvien ihmismassojen turvallinen...
Vesivekin kädenjälki näkyy Kansiareenan katoilla
Rakennuttajana ja myös osaomistajana Kansiareena hankkeessa toimii SRV. Vesivek on SRV:n pitkäaikainen yhteistyökumppani ja toimittaa sekä asentaa myös Kansiareenalle runsaan määrän erilaisia tuotteita.
Haluatko lisätietoja teknisestä tuesta tai jättää tarjouspyynnön?